Kamin Verona 1000
Tootja: LacunzaKirjeldus
VERONA 1000 on kaasaegne kahepoolne puuküttega teraskamin, mis toimib tõhusa soojusallikana ja tänu minimalistlikule disainile sobib tänapäevase kodu sisustusse. Kamin on mõeldud pakkuma parimat läbipaistvust keskkonnas ja eraldama soovi korral erinevaid ruume. Kamina saad paigaldada endale sobiva mittepõlevast materjalist alusele.
Kamin vastab ECODESIGNi standardi nõuetele. See on kõrge efektiivsuse, madala heitgaasi ja ohutu põlemisprotsessi tagatis. Kamina põlemiskamber on valmistatud vermikullidist, mis tõstab koldes temperatuuri. See tagab tõhusama ja puhtama põlemise.
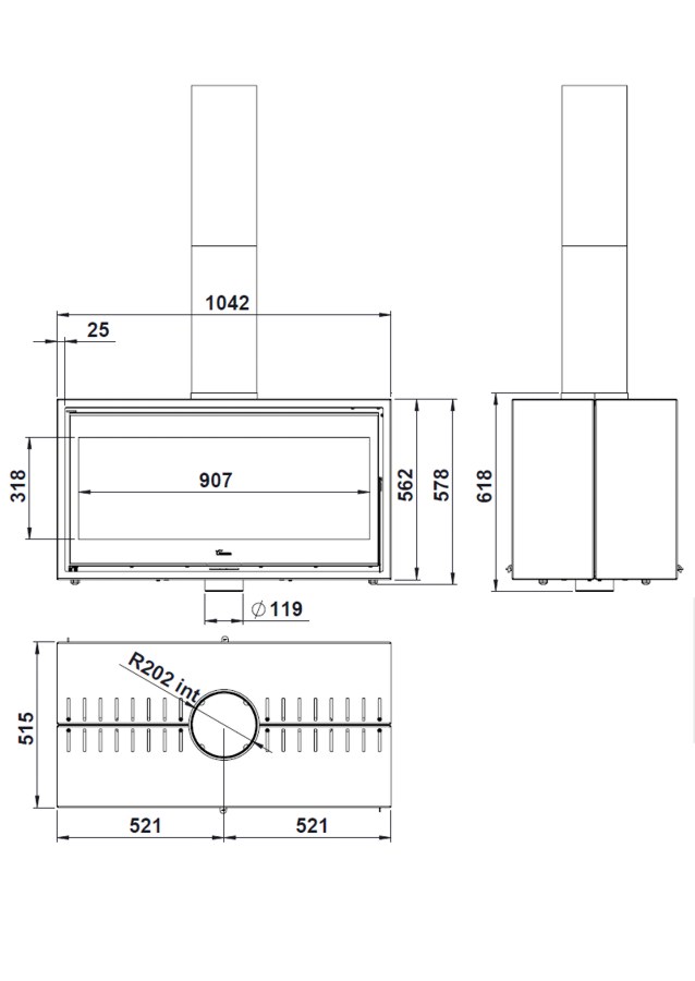
KAMINA MÕÕDUD
Kõrgus: 618 mmLaius: 1042 mmSügavus: 515 mmKAMINA TEHNILISED ANDMED
Nominaalne soojusvõimsus: 17 kWKasutegur: 80 %Väljuvate suitsugaaside temperatuur: 257 ℃Halupuude pikkus: 50-80 cmSuitsutoru ühenduse diameeter: 200 mmKaal: 175 kg






