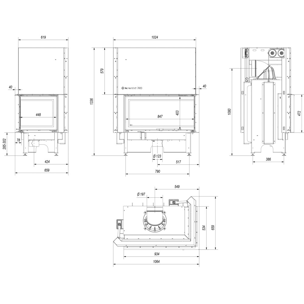
Kaminasüdamik NADIA-14BS/G PRO
Tootja: KratkiKirjeldus
Terasest südamik tõstetava nurga klaasuksega. Kaminasüdamik on võimalik nii parempoolse, kui ka vasakpoolse küljeklaasiga. Kolle on vooderdatud tulekindla soojust salvestava materjaliga TERMOTEC. Südamik on varustatud reguleeritavate jalgadega, mis võimaldab toote lihtsat loodimist. Kaminasüdamik on varustatud välisõhuga ühendamise liitmikuga.
- Liitmiku diameeter (mm) : Ø200
- Võimsuse vahemik: 6,5-17 kW
- Nominaalne võimsus : 14 kW
- Väljuvate suitsugaaside temperatuur: 245 oC
- Kasutegur : 80 %
- CO rate : 0.09 %
- Kaal : 304 Kg











