Gaasikamina südamik LEO 70
Kirjeldus
Horisontaalse kujuga gaasil töötav kaminasüdamik.
Suletud kaminasüdamik tarnitakse koos komplekti dekoratiivsete kividega, mis kaunistavad kamina kollet. Kamina juhtimine toimub komplekti kuuluva kaugjuhtimispuldiga.
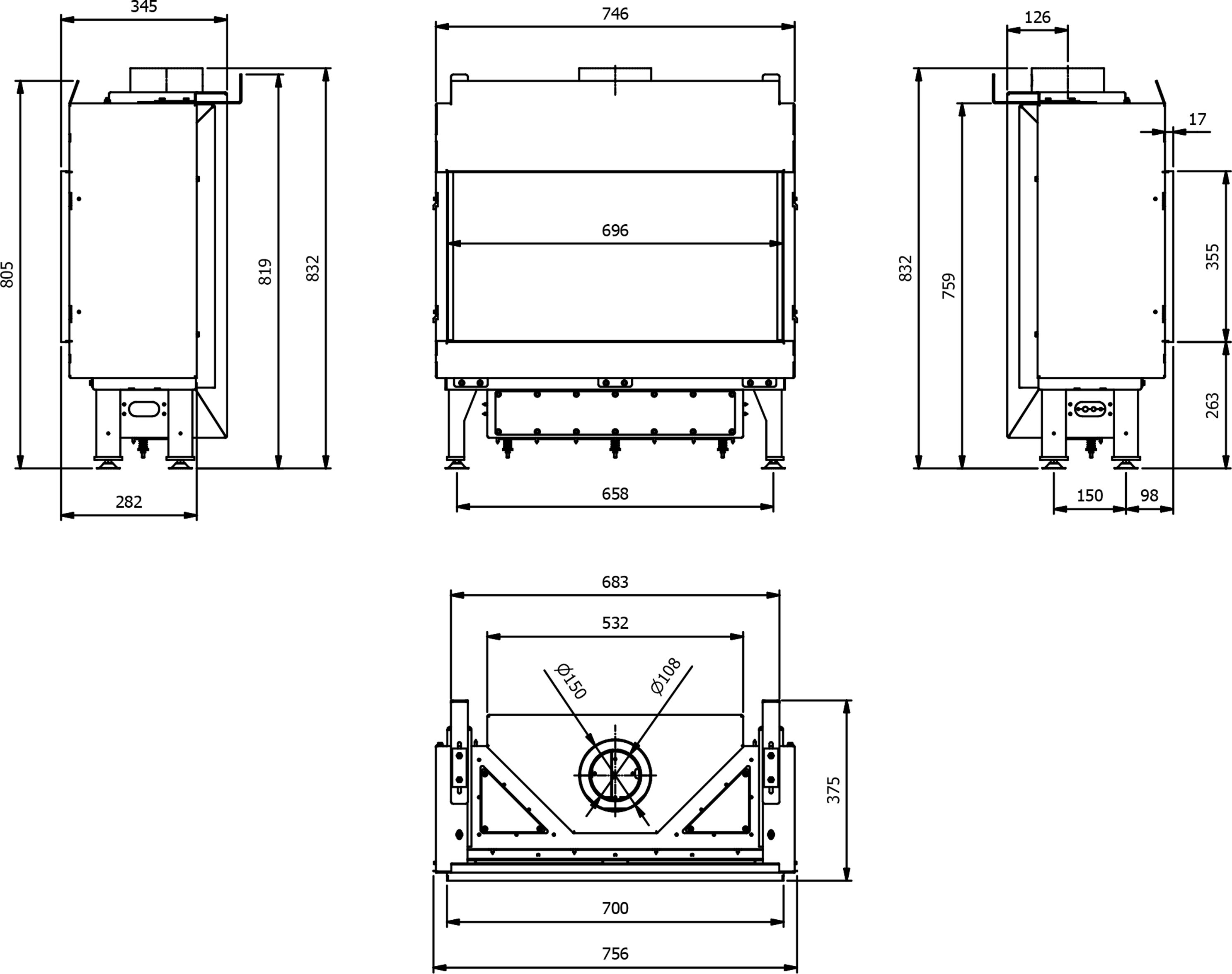
- Liitmiku diameeter (mm)sisse/välja : Ø150/108
- Üldised mõõdud LxSxK (mm) : 756 x 375 x 832
- Klaasi mõõdud LxK (mm) : 696 x 832
- Võimsuse vahemik (kW) : 3,5 - 7,3
- Kaal : 90 Kg







