Kamin Tusson
Tootja: ChazellesKirjeldus
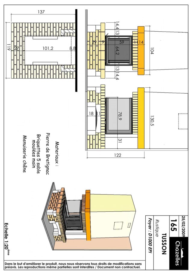
Maalähedase välimusega kamin sirgele seinale. Detaild valmistatud kivist Bretignac, dekoratiivtellisest.Komplekti kuulub tammest puitkarniis.Koldena kasutatud disainsüdamikku Chazelles D 1000 EPI.
Üldised mõõdud: 1190 x 1370 x 1220 mm
Kiviosa kaal(net): 510 kg
Tellimisaeg ca. 6 nädalat
Võimalikud pinnaviimistluse materjalid












