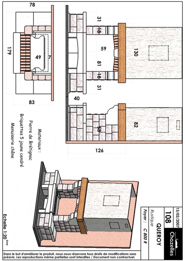
Kamin Queroy
Tootja: ChazellesKirjeldus
Maalähedase välimusega kamin sirgele seinale. Detaild valmistatud kivist Mauzens, dekoratiivtellisest.Komplekti kuulub tammest puitkarniis.Koldena kasutatud malmist südamikku Chazelles C 801 L. Kaminast võimalik ka avatud koldega versioon.
Üldised mõõdud: 1800 x 830 x 1260 mm
Kiviosa kaal(net): 834 kg
Tellimisaeg ca. 6 nädalat
Võimalikud pinnaviimistluse materjalid












