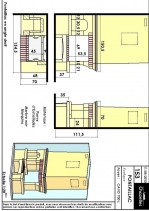
Kamin Pontaillac

Tootja: Chazelles

Kirjeldus

Maalähedase välimusega kamin sirgele seinale. Detaild valmistatud kivist Mauzens, dekoratiivtellisest.
Komplekti kuulub kivist karniis. Võimalik versioon nurka paigaldamiseks.
Koldena kasutatud südamikku Chazelles CAVG 701 L.


  Üldised mõõdud: 1680 x 700  x 1120 mm     

  Kiviosa kaal(net): 768 kg     

  Tellimisaeg ca. 6 nädalat     



Võimalikud pinnaviimistluse materjalid

tellis tellis liivakivi liivakivi liivakivi liivakivi