Kamin Fleurance
Tootja: ChazellesKirjeldus
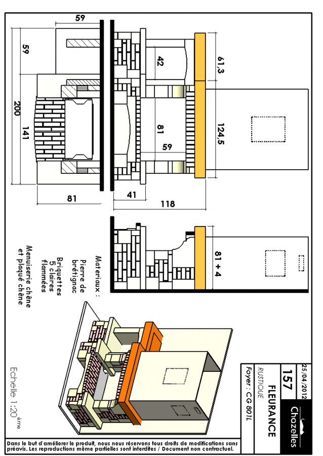
Maalähedase välimusega kamin sirgele seinale. Detaild valmistatud kivist Bretignac, dekoratiivtellisest. Komplekti kuulub tammest puitkarniis.Koldena kasutatud malmist südamikku Chazelles CG 801 L. Kaminast võimalik ka avatud koldega versioon. Üldised mõõdud: 2000 x 860 x 1170 mm
Kiviosa kaal(net): 856 kg
Tellimisaeg ca. 6 nädalat
Võimalikud pinnaviimistluse materjalid













