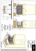
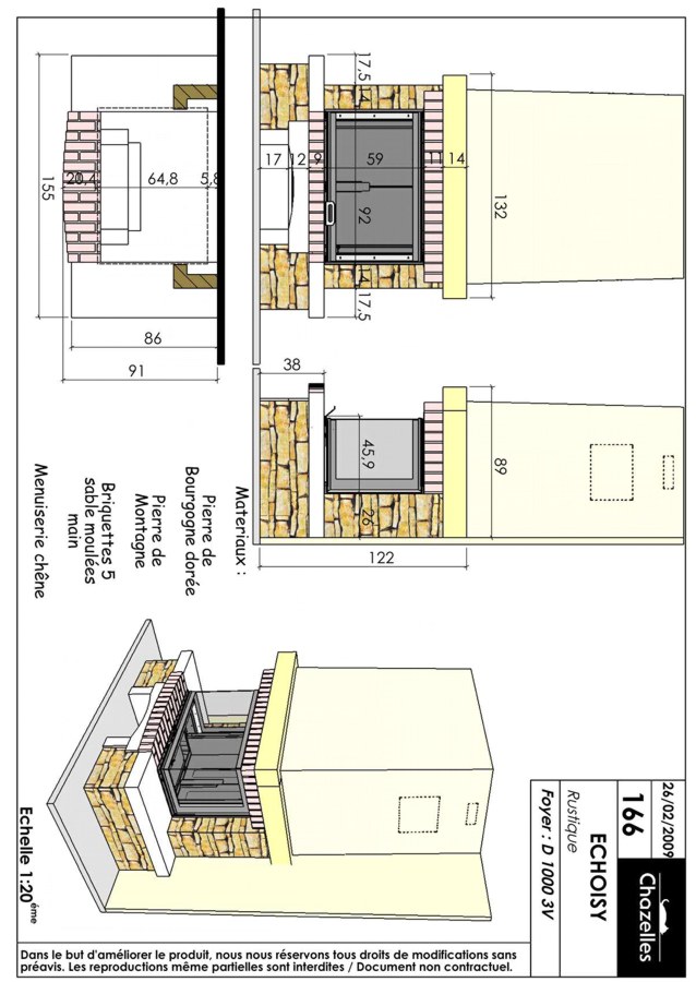
Kamin Echoisy
Tootja: ChazellesKirjeldus
Maalähedase välimusega kamin sirgele seinale. Detaild valmistatud kivist Bourgogne Doree, dekoratiivtellisest.Komplekti kuulub tammest puitkarniis.Koldena kasutatud disainsüdamikku Chazelles D 1000 3V.
Üldised mõõdud: 1550 x 910 x 1220 mm
Kiviosa kaal(net): 660 kg
Tellimisaeg ca. 6 nädalat
Võimalikud pinnaviimistluse materjalid








