Kamin Chanterac
Tootja: ChazellesKirjeldus
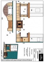
Maalähedase välimusega kamin sirgele seinale. Detaild valmistatud kivist Mauzens, dekoratiivtellisest.Komplekti kuulub tammest puitkarniis küljeriiul ja kapp.Koldena kasutatud malmist südamikku Chazelles CP 803 L. Kaminast võimalik ka avatud koldega versioon.
Üldised mõõdud: 2690 x 880 x 1180 mm
Kiviosa kaal(net): 1102 kg
Tellimisaeg ca. 6 nädalat
Võimalikud pinnaviimistluse materjalid












