Kamin Cheneviere
Tootja: ChazellesKirjeldus
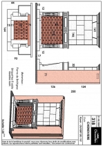
Klassikalise välimusega avatud koldega kamin sirgele seinale. Detaild valmistatud kivist Bretignac.Kolde mõõdud on 1100 x 850mm.
Üldised mõõdud: 1640 x 440 x 2500 mm
Kiviosa kaal(net): 966 kg
Tellimisaeg ca. 6 nädalat
Võimalikud pinnaviimistluse materjalid












